Comencen les obres que dotaran la Poliesportiva de nous vestidors i una reforma dels accesos

Les obres han arrencat aquesta setmana i s’allargaran 6 mesos aproximadament. El consistori assegura que les actuacions no interferiran en la pràctica esportiva en la nova temporada.

Actualitat, Destacats, Esports
Eric Guijarro

La Zona Esportiva viu un estiu intens d’obres. Aquesta setmana han començat les obres de remodelació integral dels vestidors i dels accessos de la Poliesportiva de Vilafranca. Un projecte, amb un pressupost de gairebé 1,3 milions d’euros i una durada de 6 mesos.

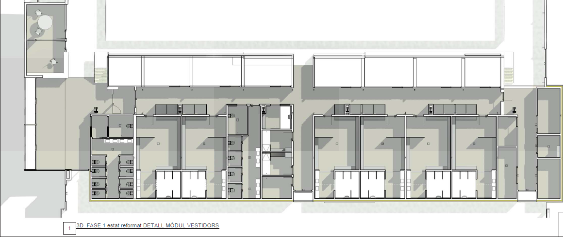
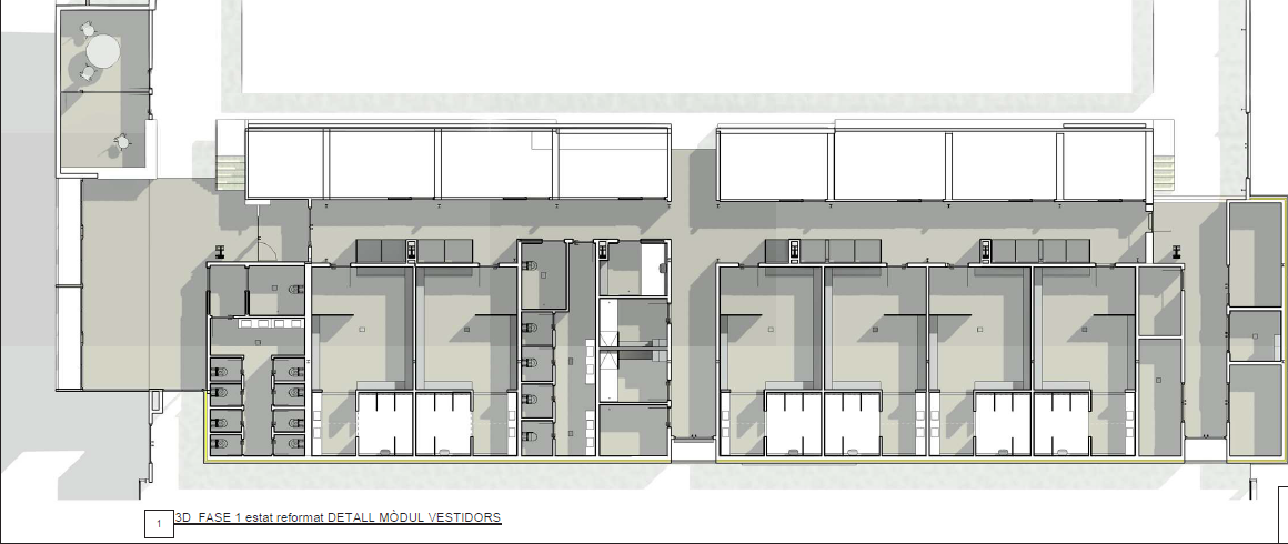
L’alcalde FranCisco Romero, acompanyat dels regidors del grup municipal d’ERC-100xcent Vilafranca, Pere Sàbat i Ramon Vilomara, i de la regidora d’Esports, Gemma Romeu, han presentat aquest migdia la reforma, que inclou la construcció d’un mòdul de 840 m² que permetrà ampliar i reorganitzar l’àrea de vestidors. El pavelló i les seves dues pistes disposaran de 6 vestidors per a esportistes i 3 per a àrbitres. També s’habilitarà una zona exterior amb armariets individuals.

Un canvi important arribarà als accessos al pavelló, que es reorganitzaran i s’unificaran en un nou vestíbul ubicat al costat de l’actual zona de bar. Un bar que es desplaçarà lleugerament. Alhora, es reformaran els lavabos públics i es millorarà la connexió entre les dues pistes del recinte.

Les obres es realitzaran en dues fases per a garantir la continuïtat de l’activitat esportiva. Durant l’estiu, es duran a terme els treballs que comporten més afectació, i a partir del setembre, es continuarà amb les actuacions restants sense afectar les pistes. De cara a l’inici dels entrenaments i competicions, s’instal·laran vestidors provisionals a l’exterior del pavelló.